3 Grace Ct, Stafford, VA 22556
Toggle Navigation
Details
Images
Floor Plans
Map
Previous Photo
Next Photo
Details
4 Bedrooms
3.5 Bathrooms
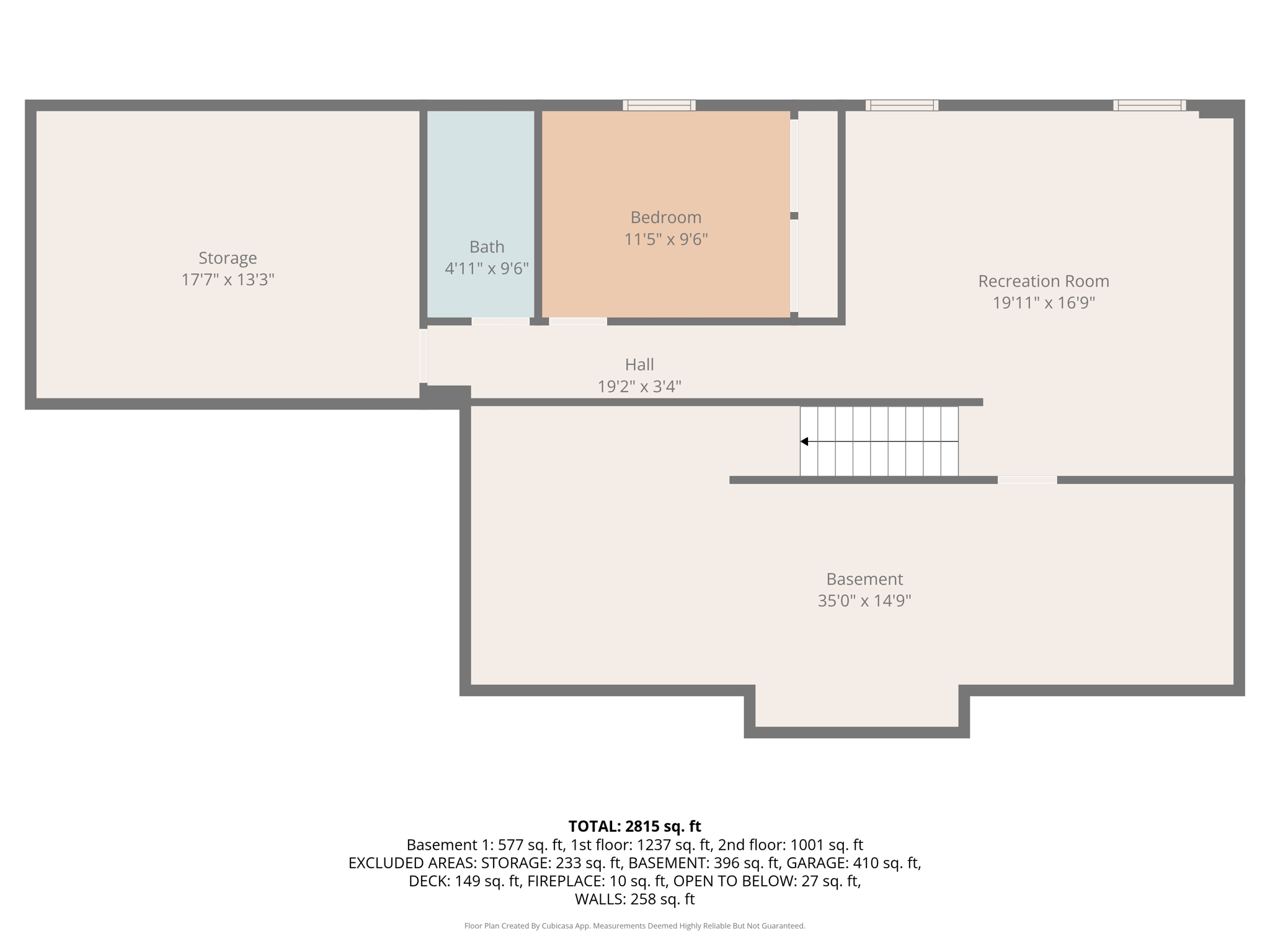
2,815 Sq/ft
Images
Slideshow
Photo Grid
Hide
Previous
Next
Show more
Floor Plans
Slideshow
Photo Grid
Hide
Previous
Next